产品展示
ZD-C型移动式格栅除污机由我厂引进日本除污机先进技术并自行研制的一种新型除污机.适用于大型取水机构进水口,污水口及雨水抽排泵站等的格栅处,用以清除水中的杂草,漂浮物,城市污水中的垃圾等,以满足后续设备净化水质和保护水泵的正常运行.
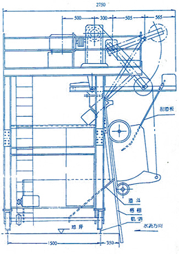
该机具有一机多孔使用灵活机动,占地少,重量轻,投资少等特点. 该机完成行走,耙渣,卸渣等一系列动作,该型除污机具有结构合理,布置紧凑,清污装置中配有刮板,动作明确可靠,清污效率高,可全日制工作等特点.
主要技术性能参数:
◆ 孔口宽度>1500; ◆ 耙斗 耙斗容积:1.1立方米; 耙斗最大允许载重(含耙斗自重)1500kg; 耙斗耙齿间距30-100mm根据用户要求; 耙斗车升降速度6m/min; 耙齿插入格栅面的深度20mm; ◆ 卷扬机构 电动机型号:Y100L-6 1.5mm 940rpm; 减速机型号:WHX-18-50-II 钢丝绳规格型号:7.7mm 绳6×19 设计扬程:5-20m ◆ 行走机构: 电动机型号:Y100 1.5KW 1420r/min 减速机型号:摆线针轮,XWED1.5-63-17×II 行走速度:3M 轨距:1500mm ◆ 电动推杆:DT0060 I 750W