加入收藏  设为主页
 
  PRODUCTS INFO
GDM电动挡板风门
CBM型电动侧开式插板风
平煤五矿主扇风门
 闸 门
 XKZ系列正面进水旋转滤网
 电动热风隔绝门
 电动冷风隔绝门
 XWC(V)或XWC(C)系列无框架侧面进水旋转滤网
 XWC(V)、XWC(C)系列全框架侧面进水旋转滤网
 XKC全框架侧面进水旋转滤网
 XXKC(W)系列旋转滤网
 耙斗格栅除污机
 ZSB系列网蓖式清污机
 澄清池搅拌机刮泥机
 SKS型可调缩孔(双芯)
 煤粉闸门装置
 LRFM(D)型电动冷、热风隔绝门
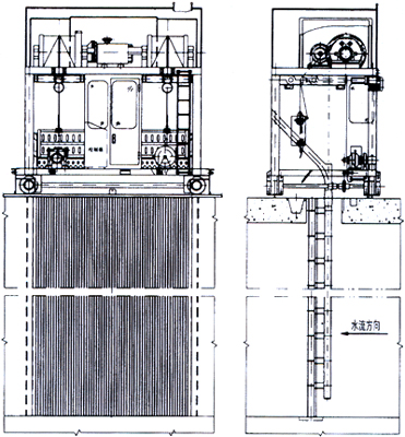
 YCB系列移动型垂直耙斗式拦污栅清污机
 DL系列电动滤水器
 澄清池搅拌机刮泥机
 关闭档板风门
 调节档板风门

产品展示

YCB系列移动型垂直耙斗式拦污栅清污机
特性:
  ◆该机是水利水电工程、火力发电厂、冶金、化工及市政工程给排水系统拦污栅的清污装置,可清除水中的塑料袋、枯树败叶、城市污水中的垃圾等较大物体。
  ◆该机具有结构合理、布置紧凑、占地少、重量轻、清污装置动作可靠、运行平衡、噪音小、承受水压大、结构简单、维修方便等优点。
  ◆驾驶人员在操作室里可通过一系列简单有效的电器控制,准确无误地操作来完成行走、清污等一系列动作。
  ◆该机行走定位采用无触点方式,并可实现手动、自动控制。
产品型号:
YCB系列移动型垂直式拦污栅清污机主要技术参数:
名称
单位、型号
YCB-1500
YCB-2000
YCB-2500
YCB-3000
YCB-3500
YCB-4000
YCB-4500
YCB-5000
拦污栅名义孔口宽度
mm
1500
2000
2500
3000
3500
4000
4500
5000
耙斗提升高度
m
10 15 20 25 30
清污机行走轨矩
m
1.5 2.3
轨道型号
p15(轻型) P24(重型)
清洗机行走速度
m/min
3
耙斗升降速度
m/min
6
过栅流速
m/s
0.8-0.9
拦污栅设计水位差
mm
1000(轻型) 1500(中型) 2000(重型)
拦污栅校正水位差
mm
1500(轻型) 2000(中型) 2500(重型)
拦污启动水位差
mm
300(轻形) 450(中型)600(重型)
拦污栅栅条间距
mm
25-150
耙斗齿插入栅条深度
mm
20
耙斗底轴距栅面距离
mm
300 500
耙斗容积
m3
0.4
0.5
0.6
0.8
1.0
1.2
1.4
1.6
耙斗载重量
T
0.8
1.0
1.2
1.6
2.0
2.4
2.8
3.4
主电机功率
KW
4
5.5
7.5
注:1、名义宽度指水室进水口宽度。
  2、栅条间距25-150mm用户可根据自己要求选用任何宽度。
  3、耙斗底轴距栅面距离,用户可根据常见污物大小确定。
  4、行走轨距可根据孔口在轨道内或轨道外选取。
WEBSITE WXFEIYI 无锡飞逸电力设备制造有限公司 Tel:0510-85596905 Fax:0510-85592677
Http://www.wxfeiyi.com E-mail:sales@wxfeiyi.com